立秋至,凉风起。一年中最不能错过的建房时节来了。打算明年入住新房的业主,记得把握住好这个时机啦!
说到建房首先得准备好图纸,为了让大家更省心;小编准备了8款别墅户型,多样风格总有一款你喜欢!
一、经济实用型
户型一:单层雅致小宅院
基地面积230m²,整体分为主房、厢房和辅房,三者相互独立。主房共布置4间卧室,中部设置客厅和茶室功能;设计师将餐厨、盥洗室置于厢房,顶层的平屋顶可作为露台使用。
户型二:多功能小户型别墅
占地117m²,户型方正,巧设5间卧室满足家人、待客等多方位需求。客厅、茶室、露台让你在不同空间待客,体验不一样的视觉效果。
标品30系A款
标品30系B款
户型三:自带庭院实用型别墅
占地167平,自带双庭院配置。楼梯储藏、主卧套房、儿童娱乐室满足多方位需求,室外楼梯功能增加生活趣味性。
△一层平面图
△二层平面图
二、家族兴旺型
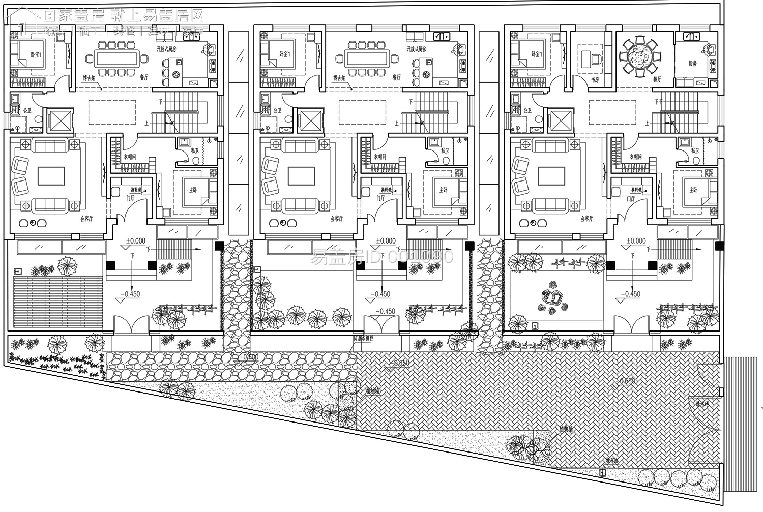
户型一:兄弟合住联排别墅
采用新中式联排设计,满足三兄弟相互独立又能互相照顾的需求。地下室设置多功能娱乐室,让你足不出户就能享受多彩生活。
△地下室平面图
△一层平面图
△二层平面图
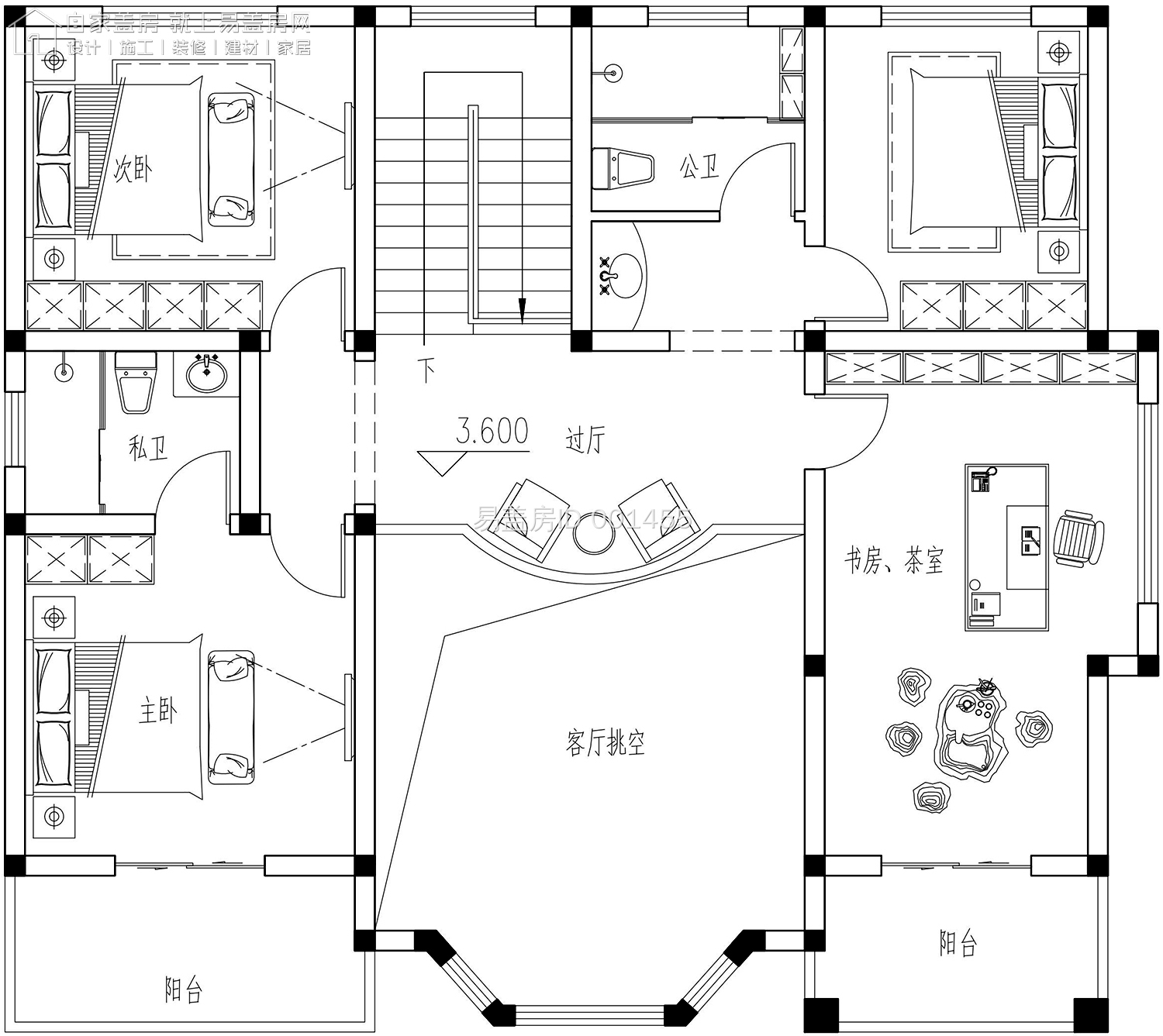
户型二:家族大气双拼别墅
占地326m²,外观极具百年大宅风范,配套电梯、挑高客厅、三层通透大厅、可容纳多人餐厅、单层主卧套房,让你体验千万豪宅气势。
△一层平面图
△二层平面图
△三层平面图
户型三:休闲雅致百万豪宅
占地233平,挑空客厅搭配大堂空间,大气社交空间让待客更为体面。辅房以餐、厨空间为主,与居住空间巧妙分隔。
△一层平面图(右侧为北)
△二层平面图(右侧为北)
△三层平面图(右侧为北)
三、异域浪漫型
户型一:浪漫法式别墅
占地120㎡,简约轻奢格调让家人更为舒适。中西厨房、儿童娱乐室、屋顶花园、绿植环绕的浴缸,创造着更为舒适的居住环境。
△一层平面图
△二层平面图
△阁楼层平面图
户型二:简约美式别墅
占地156平,八角窗造型搭配挑高客厅,景融于室的理念,让整体空间更为通透。
△一层平面图
△二层平面图
推荐阅读:江苏在线
(正文已结束)
设为首页
加入收藏
手机




