我们知道在设计新房时,选用不同的色调来搭配,不仅能表现出不同的视觉效果,还有助于户型结构的优化。比如在空间小且采光差的情况下,浅色调就可以起到补光及拓展视觉空间的作用。而在空间大的情况下,深色调则可以表现出低调及深厚的韵味感。
本期就给大家分享一套以白调为主的装修案例,当然,选择这个色调来搭配,也不是因为屋主家的新房户型结构需要用色调来优化,只是单纯的喜欢。而从整体效果来看,也完全表现出了白调应有的效果,一进门就让人感觉特干净及敞亮。
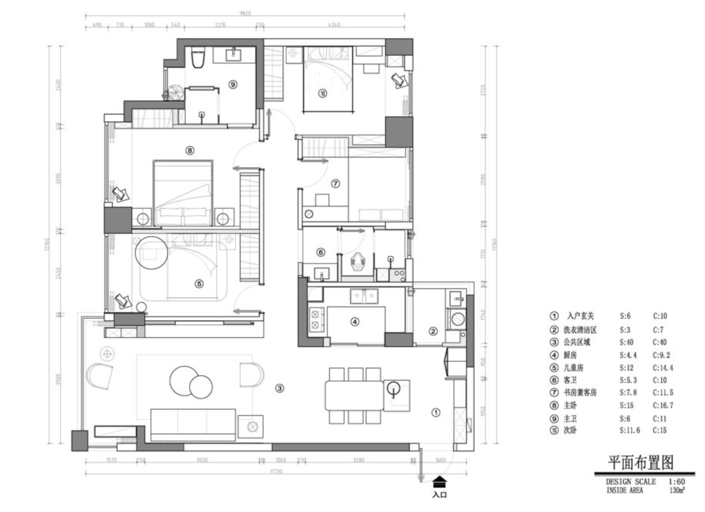
原始结构图
新房位于广州,建筑面积130㎡,屋主一家有三口人。虽说装修都要对户型结构进行改造,但从屋主家的原户型来看,应该算是相当不错的了。比如进门处就有一个独立的玄关空间,不需要再为玄关问题而感到头疼了。再比如每个房间的面积分配以及家里的动线,也算是比较合理。因此,在结构这块完全不需要做大的改造。
平面方案图
结合屋主的需求,主要改造的地方有这么几点。
1、四间卧室全部保留,南边房间作为主卧及儿童房来使用,北边卧室则作为次卧及客房使用。
2、厨房旁边的小阳台保留下来,作为一间洗衣房来使用。
3、四间卧室的门洞位置做二次调整,以避免出现空间浪费情况。
4、南阳台以休闲为主并与客厅打通,形成一个超大的空间。
进门玄关
从进门玄关处看到,全屋在使用白调来搭配的情况下,不仅显得很干净,空间感也相当的不错。同时,在功能设计上也亮点十足。比如将洗衣房的门洞改成弧形,并安装上磨砂玻璃后,既表现出了不错的视觉效果,也起到了遮挡作用。
再比如进门右边空间,在拥有一块超大的鞋柜空间后,还可以摆下一个对开门冰箱。而左边的餐厅处,则是设计了一个中岛台,并配置了烤箱等电器,非常实用。
餐厅
从餐厅看向进门视角,鞋柜结构设计得也非常实用。左边为挂衣区及换鞋区,右边则是一个超大的储物区。而在颜色搭配这块,则是在以白调为主的情况下,选用了部分原木色来做点缀,显得十分巧妙。餐桌是贴着中岛台摆放的,既不影响两边的出入空间,超大的圆柱桌腿,也显得大气十足。
客厅
考虑到大面积的乳胶漆白墙,会给人一种平淡感,用白色的木纹板来装饰沙发墙,则很好的提升了视觉效果。而圆形的装饰品搭配上暖白色的灯光后,也起到了烘托空间气氛的作用,避免给人一种冰冷感。
将电视机以内嵌的方式安装在木纹板内,则很好的保证了电视背景墙的完整性。而下面现场制作的电视柜,再搭配上大理石台面后,也是非常实用的存在,且还能提高档次。
放弃阳台门套的安装,并将阳台柜与电视墙连接在一起,既丰富了电视墙的造型,再延伸了电视墙的视觉效果。而在电视墙以原木调为主的情况下,阳台柜选择用原木调来做点缀色,也很好的平衡了整体色调。
纵观整个客餐厅,除了视觉空间显得很大,全屋也显得超干净。这里有一个细节要提一下,就是在地面的处理上。玄关与餐厅用六角地砖来铺设,客厅及过道用地板来铺设,既方便了卫生清理,也能拥有很舒适的居住体验。
过道
过道也有一个细节做得非常不错,就是在顶部拉平顶的情况下,为了避免造成压抑感。所有的门都做了到顶设计,从而弱化掉层高低而给人产生的压抑感。
卫生间
卫生间干区的设计也非常实用,比如现场制作的悬空式台盆柜,贴上瓷砖后,既能增加使用寿命,也完全能符合现场的尺寸。而自带时间的镜子,则可以在屋主洗漱时起到提醒作用。
主卧室
主卧的色彩搭配,可以说是将客餐厅的色调做了一个整合。比如原木与白木纹搭配的床头背景墙、黑色的梳妆台等等。
儿童房
儿童房最大的亮点,就是床头双拼色处理了,既代表了孩子的天性,也可以和床品搭配起来。而贴着飘窗台摆放写字桌,以及飘窗台上的书架设计,也是非常实用的。
次卧
次卧虽说暂时没有人居住,但在整体的气氛上却做的非常好。比如护墙板顶部的暗藏灯光设计、窗帘盒内的灯光设计、墙面层板下的灯光设计等等。而一抹克莱因蓝的闹钟,则是做为点缀的存在。
本期案例就分享到这里,虽说白调设计在装修中很普遍,但本案中的色调搭配,完全可以说在白调的基础上,又做了一次升华,区别于常规的白调,又不逃脱于白调,非常漂亮。
推荐阅读:西安视窗
(正文已结束)
设为首页
加入收藏
手机




